$279,795

15515 Mint Patch Meadow, Von Ormy, TX 78073

  • 5 beds |
  • 3 baths |
  • 1,892 sqft
  • Property Icon Single-Family Home
  • Property Year Built Icon Built in 2025
  • Property Lot Size Icon5,227sqft lot
  • Property Parking Icon —— car garage
  • Property Price Per Square Feet Icon $148/sqft
  • Property List Date Icon Listed 15 days ago

Property Description

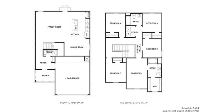
The Franklin plan is one of our two-story homes featured in Preserve at Medina in Von Ormy, TX. This new home layout offers 2 classic front exteriors, 5 bedrooms, 2.5 baths, 2 car-garage and 1891 square feet of comfortable living. Step inside The Franklin to find an elongated foyer opening to an open concept living room, kitchen, and dining area. The gourmet kitchen faces the living area so you don't miss a thing while cooking and includes quartz counter tops, stainless steel appliances and shaker style cabinetry. The main bedroom is located toward the front of the home on the second story and features an attractive attached bathroom with a walk-in shower, quartz countertops, a grand walk-in closet and plenty of storage space. The second story includes all secondary bedrooms, and two full bathrooms. You'll have carpeted floors in every bedroom and sheet vinyl flooring in your bathrooms and utility room. Additional features include sheet vinyl flooring in entry, living room, and all wet areas, quartz counter tops in all bathrooms and HOME IS CONNECTED base package. Using one central hub that talks to all the devices in your home, you can control the lights, thermostat and locks, all from your cellular device.

Listing Status:
Active
Date Added:
October 2, 2025 at 05:00AM
Listing Office:
Keller Williams Heritage : (210) 493-3030
Listing Agent:
R.J. Reyes : (210) 842-5458
MLS ID:
1912211
  • General: One Living AreaLiv/Din ComboIsland KitchenBreakfast BarAll Bedrooms UpstairsOpen Floor PlanLaundry Upper LevelLaundry RoomWalk in ClosetsAttic - Pull Down Stairs
  • Flooring: CarpetingVinyl
  • A/C: One Central
  • Heating: CentralNatural Gas
  • Fireplace: Not ApplicableFireplaces: 0
  • Eco/Green Feature: 13-15 SEER AXProgrammable ThermostatDouble Pane WindowsRadiant BarrierLow E WindowsLow Flow Commode
  • General: BrickSidingCovered PatioPrivacy FenceSprinkler SystemDouble Pane Windows
  • Style: Two Story
  • Pool: None
  • Roofing: Composition
  • Windows: All Remain
  • General: TwoSlab
  • HOA Amenities: Park/PlaygroundOther - See Remarks396.0Annually
  • School District: Southwest I.S.D.
  • County: Bexar
  • Zoning: Block 43 Lot 71
  • Utilities: CPSCPS
  • Water: Water SystemSewer System
  • Sewer: SAWS

This listing courtesy of R.J. Reyes, Keller Williams Heritage

Monthly Payment

$Est. Payment
  • Principal & Interest $
  • Property Taxes $
  • Home Insurance $
  • VA Funding Fee $

Ready to Start a VA Loan?

Get Started Veterans United Home LoansNMLS #1907  â€ 
Interest rates used in the VA mortgage calculator are shown for illustrative purposes only. Your rate may differ based on a variety of factors, including your credit score and the current market conditions. To get your personalized interest rate, start your quote online.

Location

Schools Nearby

S

Spicewood Park Elementary School

11303 Tilson Dr, San Antonio, TX, 78224

Grades PK-5

3.17 miles away

J

Judith a Resnik Middle School

4495 SW Verano Pkwy Bldg 200, Von Ormy, TX, 78073

Grades 6-8

1.77 miles away

S

Southwest Legacy High School

4495 SW Verano Pkwy Bldg 100, Von Ormy, TX, 78073

Grades 9-12

2.08 miles away

Disclaimer: School and School District information courtesy of the National Center for Education Statistics (NCES). School boundaries may change. Proximity to listed schools does not guarantee enrollment eligibility. Contact the school district for more information and exact boundaries.

Similar Listings Nearby