130 Leslie Ave, La Crosse, WA 99143
- 3 beds |
- 2 baths |
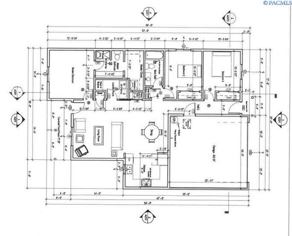
- 1,253 sqft
Single-Family Home
Built in 2025
9,148sqft lot
2 car garage
$243/sqft
Listed 8 months ago
Property Description
MLS# 286405 Modern Country Living is Coming to LaCrosse – New Homes For the First Time in Over 50 Years. For the first time in over half a century, brand new homes are being built in the heart of LaCrosse, Washington—a peaceful, tight-knit farming community where tradition runs deep and life moves at the pace it should. These affordable, energy-efficient homes are designed for those who crave the serenity of rural life without sacrificing comfort, quality, or modern convenience. Each home features a spacious open-concept floor plan, gourmet-style kitchens with beautiful cabinetry, large primary suites with luxury ensuite baths, covered porches perfect for morning coffee and sunset chats, and attached 2-3 car garages. We have multiple floor plans and lot sizes available starting at 1253 sq ft and ranging up to 2567 sq ft. These are one-story homes—ideal for any age or lifestyle. Built local and built to last. Crafted with intention and built to meet today’s standards, these homes are perfect for first-time buyers looking to plant roots, families needing space to grow, retirees or returning locals who want peace and wide-open skies, and investors looking for rare value in a low-inventory market. Only a handful of homes will be built and lot reservations are now open. We are currently accepting deposits. We currently only have 5 lots available. Once they’re gone, they’re gone. You’ll want to act fast. Don’t miss your chance to own a slice of small-town Americana with big-time livability. Contact builder representative for more information. Photos shown are AI-generated renderings intended for illustrative purposes only. Final construction and finishes may vary from those depicted.
- Listing Status:
- Active
- Data Last Updated:
- April 4, 2026 at 6:48PM
- Listing Office:
- EXP Realty, LLC Tri Cities :
- Listing Agent:
- Michael Gibson : (509) 378-7889
- MLS ID:
- 286405
- Parking: Parking spaces: 2
- General: One
- Originating MLS: PACMLS
- County: Whitman
- Source: PACMLS
This listing courtesy of Michael Gibson , EXP Realty, LLC Tri Cities
Monthly Payment
- Principal & Interest $
- Property Taxes $
- Home Insurance $
- VA Funding Fee $
Location
Schools Nearby
Lacrosse Elementary School
111 Hill Ave, Lacrosse, WA, 99143
Grades PK-8
0.31 miles away
Lacrosse Elementary School
111 Hill Ave, Lacrosse, WA, 99143
Grades PK-8
0.31 miles away
Lacrosse High School
111 Hill Ave, Lacrosse, WA, 99143
Grades 6-12
0.31 miles away




