97306 N Snively, West Richland, WA 99353
- 3 beds |
- 3 baths |
- 3,156 sqft
Single-Family Home
Built in 2017
5acre lot
2 car garage
$242/sqft
Listed 26 days ago
Property Description
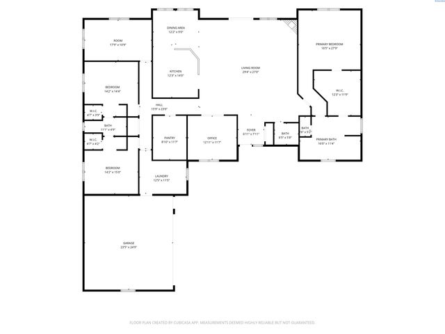
MLS# 291064 Interior refreshed with new paint on trim, doors, select bedrooms, and ceilings. Image starting your mornings surrounded by wide open skies, quiet country roads, and a deep sense of peace. Set on 5 acres and thoughtfully suited for livestock, this one-level home offers the space, privacy, and calm that define true country living while still remaining within easy reach of town.The home features a well planned split bedroom layout with three bedrooms, an office, and a versatile main-level bonus room. The open great room is warm and inviting with laminate flooring throughout, a cozy gas fireplace, and an easy flow into the kitchen, complete with a generous walk in pantry.Step outside onto the large covered deck and take in sweeping views of Rattlesnake Mountain and peaceful, unforgettable sunsets, an ideal place to slow down, breathe, and enjoy the quiet surroundings.The primary suite serves as a private retreat, offering a tiled walk-in shower, separate soaking tub, dual sinks, and a spacious walk-in closet. Two additional bedrooms each feature walk-in closets and share a convenient Jack-and-Jill bathroom. A laundry room with utility sink sits just off the extra-large garage, providing excellent space for trucks, storage, or projects.Tucked away in a quiet and private setting, yet just 20 minutes from the Hanford site and close to the Tapteal Trail for outdoor recreation. Built above the 100-year flood level for added peace of mind, with ample room to add a shop and make the land your own.This is more than a home it’s a place to put down roots and enjoy wide open space.
- Listing Status:
- Pending
- Data Last Updated:
- April 5, 2026 at 1:47PM
- Listing Office:
- Windermere Group One/Tri-Cities :
- Listing Agent:
- Melinda Robinson : (509) 947-4517
- MLS ID:
- 291064
- General: Bath - MasterBreakfast BarDining - Kitchen/ComboDining - Living/ComboRoom - BonusMaster - Main LevelRoom - GreatRoom - UtilityWalk-In Closet(s)Kitchen IslandMaster SuitePantryLaminate CountersVaulted Ceiling(s)StorageUtilities in GarageCeiling Fan(s)Utility Sink
- Appliances: Appliances-ElectricAppliances-GasCooktopDishwasherDisposalMicrowaveOvenRefrigeratorWater Heater
- Laundry: Laundry Room
- Basement: NoneCrawl Space
- Flooring: Laminate
- A/C: Central Air
- Heating: CeilingGas - HeatingFurnace
- Fireplace: 1GasPropane Tank LeasedLiving RoomFireplaceFireplaces: 1
- General: Set-up for LivestockIrrigation
- Parking: Attached2 carGarage Door OpenerFinishedOff StreetRV Access/ParkingParking spaces: 2
- Roofing: Composition
- Windows: Window CoveringsDouble Pane WindowsWindows - Vinyl
- General: Concrete BoardOneConcrete Perimeter
- Road/Access: County Road
- Originating MLS: PACMLS
- School District: Richland
- County: Benton
- View: View
- Fencing: Full
- Utilities: Electricity ConnectedElectricity on Property
- Water: Private
- Sewer: Septic Tank
- Source: PACMLS
This listing courtesy of Melinda Robinson , Windermere Group One/Tri-Cities
Monthly Payment
- Principal & Interest $
- Property Taxes $
- Home Insurance $
- VA Funding Fee $
Location
Schools Nearby
Tapteal Elementary School
2100 Sunshine Ave, West Richland, WA, 99353
Grades KG-5
4.98 miles away
Enterprise Middle School
5200 Paradise Dr, West Richland, WA, 99353
Grades 6-8
4.82 miles away
Three Rivers Home Link
1710 Van Giesen St, Richland, WA, 99354
Grades KG-12
6.06 miles away






